top of page
Umbau und energetische Sanierung Rathaus Mörfelden

Das Rathaus war in die Jahre gekommen, sowohl was die Struktur, als auch den energergetischen Stand anbetraf. Strukturell wurden »offene« Büros als Kombibüros favorisiert, deren Achsmaße jedoch nicht
geeignet erschienen.
Die Überlagerung der vorhandenen Achsmaße (120 cm) mit den neuen Achsmaßen (135 cm) bestimmen somit die Struktur und Gestalt der neuen Fassade. Somit sind beide Büroorganisationsformen möglich: Bestand als Zellenbüros und als Kombibüros nach dem Umbau.


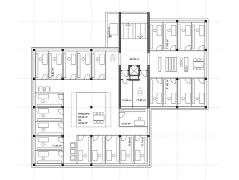
Grundriss alter Bestand
Grundriss neuer Bestand
Adresse:
Westendstraße 8
64546 Mörfelden-Walldorf
Daten:
Bruttogrundfläche: 3.250 qm
Fassadenfläche: 1.800 qm
Baukosten: 3,6 Mio. €
Bauherr: Stadt Mörfelden-Walldorf
Architekten: es+
Fotos © Johann Eisele
bottom of page



